|
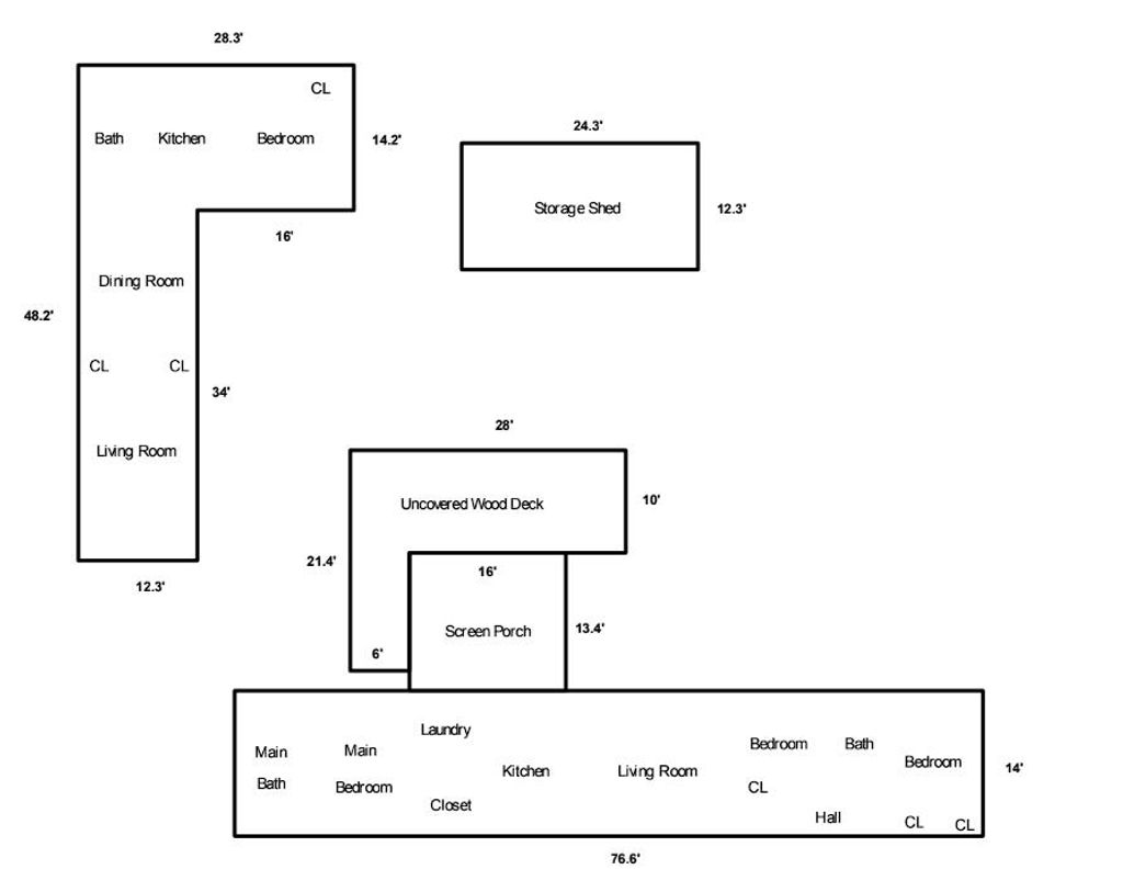
Perfect for Multi-Generational Living or Investment Opportunity! This unique property is ready to be loved by its next owner, offering two separate dwellings on one expansive lot totaling 1.35 acres(two parcels being combined through Aiken County). The main home is a 3-bedroom, 2-bathroom manufactured home with 1088 sq ft of comfortable living space. The second dwelling is a charming 336 sq ft, 1-bedroom, 1-bath unit that includes an office and additional space for a living area or storage "” ideal for a guest house, rental, or home business setup. Additional features include a 24x12 workshop, perfect for hobbies, storage, or small projects. This flexible setup offers numerous possibilities whether you're looking for a family compound, rental income, or space to spread out, this property delivers!
| DAYS ON MARKET | 103 | LAST UPDATED | 7/19/2025 |
|---|---|---|---|
| TRACT | None | YEAR BUILT | 1982 |
| COUNTY | Aiken | STATUS | Active |
| PROPERTY TYPE(S) | Single Family |
| Elementary School | Redcliffe |
|---|---|
| Jr. High School | Jackson |
| High School | Silver Bluff |
| ADDITIONAL DETAILS | |
| AIR | Ceiling Fan(s), Central Air, Electric, Heat Pump |
|---|---|
| AIR CONDITIONING | Yes |
| APPLIANCES | Dishwasher, Dryer, Electric Water Heater, Range, Washer |
| BASEMENT | None |
| CONSTRUCTION | Block, Vinyl Siding |
| HEAT | Electric, Forced Air, Heat Pump |
| INTERIOR | Ceiling Fan(s), Eat-in Kitchen, Walk-in Closet(s) |
| LOT | 1.35 acre(s) |
| LOT DESCRIPTION | Landscaped |
| PARKING | Driveway, Paved |
| POOL DESCRIPTION | None |
| SEWER | Public Sewer |
| STORIES | 1 |
| STYLE | Ranch |
| SUBDIVISION | None |
| UTILITIES | Cable Available |
| WATER | Public |
MORTGAGE CALCULATOR
TOTAL MONTHLY PAYMENT
0
P
I
*Estimate only
| SATELLITE VIEW |
| / | |
We respect your online privacy and will never spam you. By submitting this form with your telephone number
you are consenting for Venus
Griffin to contact you even if your name is on a Federal or State
"Do not call List".
Listed with NorthGroup Real Estate LLC
The data relating to real estate for sale on this web site comes in part from the Internet Data exchange (“IDX”) program of the Aiken Board of Realtors. IDX information is provided exclusively for consumers' personal, non-commercial use and may not be used for any purpose other than to identify prospective properties consumers may be interested in purchasing. Information deemed reliable but not guaranteed.
Copyright© 2025 Aiken Board of Realtors. All rights reserved.
Last Updated: 10/29/25 1:07 AM PDT
This IDX solution is (c) Diverse Solutions 2025.