|
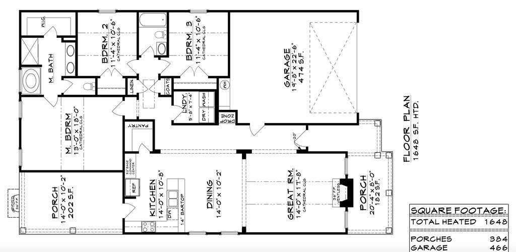
PlanDwell Homes proudly presents The Sapelo Plan a stunning single-story ranch offering 1,648 heated square feet, 3 spacious bedrooms, and 2 full bathrooms. From the moment you arrive, you'll fall in love with the inviting covered front and back porches, perfect for enjoying the beautifully landscaped yard. Step inside to an open-concept layout filled with natural light. The great room features a cozy fireplace and seamlessly connects to the dining area, creating a warm and welcoming space for everyday living or entertaining. The kitchen is a showstopper with granite countertops, a stylish tile backsplash, stainless steel appliances, and plenty of room to prep meals and gather with loved ones. Retreat to the luxurious owner's suite, complete with a spa-inspired bathroom featuring dual vanities, a walk-in shower, and a large walk-in closet. Located in The Sanctuary, a thoughtfully designed neighborhood that offers a lifestyle of comfort and community. Enjoy amenities like sidewalks, streetlights, a scenic walking trail, and a vibrant community garden. All just minutes from Downtown Aiken, Hitchcock Woods, Bruce's Field, premier equestrian centers, shopping, and dining. Note: Photos are of a previously built Sapelo Plan. Actual home features, finishes, colors, and fixtures may vary. Buyer and buyer's agent to verify all information, including square footage and school zones.
| DAYS ON MARKET | 91 | LAST UPDATED | 7/30/2025 |
|---|---|---|---|
| TRACT | The Sanctuary | YEAR BUILT | 2025 |
| COMMUNITY | NW | GARAGE SPACES | 2.0 |
| COUNTY | Aiken | STATUS | Active |
| PROPERTY TYPE(S) | Single Family |
| Elementary School | East Aiken |
|---|---|
| Jr. High School | Aiken Intermediate 6th-Kennedy Middle 7th&8th |
| High School | South Aiken |
| ADDITIONAL DETAILS | |
| AIR | Ceiling Fan(s), Central Air, Electric |
|---|---|
| AIR CONDITIONING | Yes |
| APPLIANCES | Dishwasher, Electric Water Heater, Microwave, Range |
| AREA | NW |
| BASEMENT | None |
| CONSTRUCTION | HardiPlank Type |
| GARAGE | Attached Garage, Yes |
| HEAT | Electric, Forced Air |
| HOA DUES | 450 |
| INTERIOR | Ceiling Fan(s), Eat-in Kitchen, Pantry, Walk-in Closet(s) |
| LOT | 0 |
| LOT DESCRIPTION | Landscaped, Other, See Remarks, Sprinklers In Front, Sprinklers In Rear |
| LOT DIMENSIONS | 0.0 |
| PARKING | Attached |
| POOL DESCRIPTION | None |
| SEWER | Other, Public Sewer |
| STORIES | 1 |
| STYLE | Ranch |
| SUBDIVISION | The Sanctuary |
| WATER | Other, Public |
MORTGAGE CALCULATOR
TOTAL MONTHLY PAYMENT
0
P
I
*Estimate only
| SATELLITE VIEW |
| / | |
We respect your online privacy and will never spam you. By submitting this form with your telephone number
you are consenting for Venus
Griffin to contact you even if your name is on a Federal or State
"Do not call List".
Listed with Meybohm Real Estate - North Au
The data relating to real estate for sale on this web site comes in part from the Internet Data exchange (“IDX”) program of the Aiken Board of Realtors. IDX information is provided exclusively for consumers' personal, non-commercial use and may not be used for any purpose other than to identify prospective properties consumers may be interested in purchasing. Information deemed reliable but not guaranteed.
Copyright© 2025 Aiken Board of Realtors. All rights reserved.
Last Updated: 10/28/25 1:26 PM PDT
This IDX solution is (c) Diverse Solutions 2025.