|
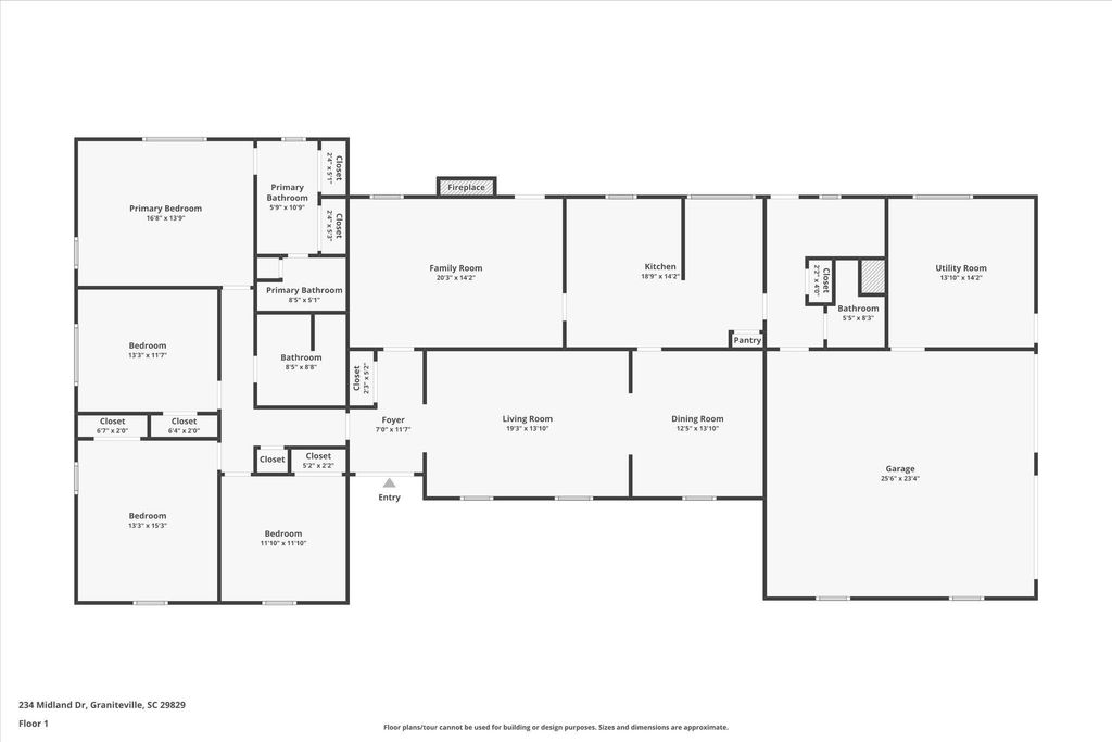
Located in the Midland Valley Country Club Golf Course community, this all-brick ranch sits on a wooded, fenced lot .61 of an acre, offering space, privacy, and convenience between Augusta and Aiken. The front porch with double-door entry welcomes an inviting first impression for family and friends and offers opportunity for seasonal decor and curb appeal. Inside, the home features 4 bedrooms and 3 full baths, with one bedroom that could easily serve as a home office or flex space. Recent updates include fresh interior paint, new carpet, LVT flooring, a newer water heater, and new kitchen appliances that convey with purchase. Major systems provide peace of mind with two HVAC units (2024 & 2013), both recently serviced, and a roof with plenty of remaining life expectancy. The oversized two-car garage offers exceptional space for a workshop, storage, or golf cart parking. Just off the garage is a large additional room with the potential to be ducted for HVAC"”ideal for a playroom, hobby space, fitness room, man cave, or future conditioned living area. Storage is abundant throughout the home. Out back, enjoy a large patio perfect for relaxing or entertaining, overlooking a sizable rear yard with room to enjoy and grow. Priced under comparable square footage, this home presents a strong opportunity to live comfortably while updating over time and building equity. Convenient to manufacturing plants, schools, churches, hospitals, Fort Gordon, Cyber units, technical colleges, that popular Augusta golf tournament, entertainment in downtown Augusta, Aiken, and North Augusta. A well-established golf course community offering space, value, and long-term potential"”schedule your showing today.
| DAYS ON MARKET | 76 | LAST UPDATED | 1/10/2026 |
|---|---|---|---|
| TRACT | Midland Valley Country Club | YEAR BUILT | 1974 |
| GARAGE SPACES | 2.0 | COUNTY | Aiken |
| STATUS | Active | PROPERTY TYPE(S) | Single Family |
| PRICE HISTORY | |
| Prior to Jan 10, '26 | $357,500 |
|---|---|
| Jan 10, '26 - Today | $349,900 |
| ADDITIONAL DETAILS | |
| AIR | Ceiling Fan(s), Central Air |
|---|---|
| AIR CONDITIONING | Yes |
| APPLIANCES | Microwave, Range, Refrigerator |
| BASEMENT | None |
| CONSTRUCTION | Brick |
| FIREPLACE | Yes |
| GARAGE | Attached Garage, Yes |
| HEAT | Electric, Fireplace(s) |
| HOA DUES | 100 |
| INTERIOR | Ceiling Fan(s), Eat-in Kitchen |
| LOT | 0.61 acre(s) |
| LOT DESCRIPTION | Landscaped, Wooded |
| LOT DIMENSIONS | 0.61 |
| PARKING | Garage Door Opener, Attached, Driveway, Garage |
| POOL DESCRIPTION | None |
| SEWER | Septic Tank |
| STORIES | 1 |
| STYLE | Ranch |
| SUBDIVISION | Midland Valley Country Club |
| UTILITIES | Water Available, Cable Available, Electricity Available |
| WATER | Public |
MORTGAGE CALCULATOR
TOTAL MONTHLY PAYMENT
0
P
I
*Estimate only
| SATELLITE VIEW |
| / | |
We respect your online privacy and will never spam you. By submitting this form with your telephone number
you are consenting for Venus
Griffin to contact you even if your name is on a Federal or State
"Do not call List".
Listed with Real Broker LLC
The data relating to real estate for sale on this web site comes in part from the Internet Data exchange (“IDX”) program of the Aiken Board of Realtors. IDX information is provided exclusively for consumers' personal, non-commercial use and may not be used for any purpose other than to identify prospective properties consumers may be interested in purchasing. Information deemed reliable but not guaranteed.
Copyright© 2026 Aiken Board of Realtors. All rights reserved.
Last Updated: 3/1/26 11:49 PM PST
This IDX solution is (c) Diverse Solutions 2026.