|
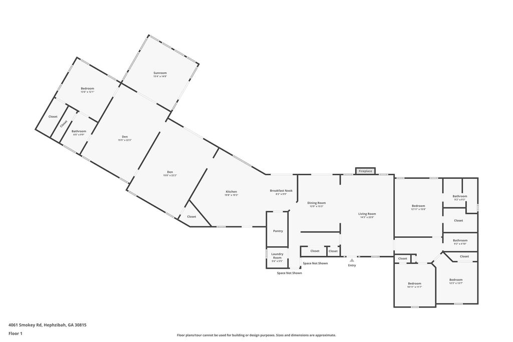
Set on 7.50 breathtaking waterfront acres, this 3,600 sq ft all one-level home with a garage, an inlaw suite and detached studio apartment/game room - this home offers space, comfort, and views that never get old! Hardwood floors flow throughout the main living areas, creating a warm and timeless feel! The living room is the heart of the home with vaulted ceilings, a cozy fireplace, and ceiling fan, seamlessly connecting to the formal dining room! The well-appointed kitchen is designed for both everyday living and entertaining, featuring a massive pantry, abundant cabinet and counter space, a large island with an additional sink, double oven, built-in microwave, dishwasher, and refrigerator! A charming breakfast nook provides the perfect spot to start your day! Soak in the scenery from the lovely sunroom with tile floors and panoramic water views, or step outside to the expansive three-tier deck, complete with a screened-in porch and ceiling fan, ideal for relaxing or entertaining while overlooking the water! The owner's suite is a private retreat with a tray ceiling, ceiling fan, and a spa-like ensuite offering double vanities, granite countertops, wood-framed mirrors, and a walk-in tiled shower! A spacious den - perfect for work, hobbies, a quiet retreat or an inlaw suite with private access to a guest bedroom and full bathroom with a soaking tub and separate shower! Two additional guest bedrooms, each with ceiling fans, share a full bath! Additional features include a greenhouse, a chicken coop and a trail that goes to the back of the property with a shooting range! This exceptional waterfront property blends comfort, functionality, and outdoor living - an ideal place to unwind, entertain, and enjoy nature at its finest!
| DAYS ON MARKET | 17 | LAST UPDATED | 12/30/2025 |
|---|---|---|---|
| TRACT | None | YEAR BUILT | 1996 |
| COMMUNITY | Not Aiken County | GARAGE SPACES | 2.0 |
| COUNTY | Richmond | STATUS | Active |
| PROPERTY TYPE(S) | Single Family |
| Elementary School | Other |
|---|---|
| Jr. High School | Other |
| High School | Other |
| ADDITIONAL DETAILS | |
| AIR | Ceiling Fan(s), Central Air, Electric, Heat Pump |
|---|---|
| AIR CONDITIONING | Yes |
| APPLIANCES | Dishwasher, Electric Water Heater, Microwave, Oven, Range, Refrigerator, Self Cleaning Oven |
| AREA | Not Aiken County |
| BASEMENT | Crawl Space |
| CONSTRUCTION | Brick |
| FIREPLACE | Yes |
| GARAGE | Attached Garage, Yes |
| HEAT | Electric, Forced Air |
| INTERIOR | Breakfast Bar, Ceiling Fan(s), Kitchen Island, Pantry, Walk-in Closet(s) |
| LOT | 7.5 acre(s) |
| LOT DESCRIPTION | Waterfront |
| LOT DIMENSIONS | 7.50 Acres |
| PARKING | Garage Door Opener, Attached, Garage |
| POOL DESCRIPTION | None |
| SEWER | Septic Tank |
| STORIES | 1 |
| STYLE | Ranch |
| SUBDIVISION | None |
| UTILITIES | Water Available, Electricity Available |
| WATER | Public |
| WATERFRONT | Yes |
MORTGAGE CALCULATOR
TOTAL MONTHLY PAYMENT
0
P
I
*Estimate only
| SATELLITE VIEW |
| / | |
We respect your online privacy and will never spam you. By submitting this form with your telephone number
you are consenting for Venus
Griffin to contact you even if your name is on a Federal or State
"Do not call List".
Listed with Shannon Rollings Real Estate
The data relating to real estate for sale on this web site comes in part from the Internet Data exchange (“IDX”) program of the Aiken Board of Realtors. IDX information is provided exclusively for consumers' personal, non-commercial use and may not be used for any purpose other than to identify prospective properties consumers may be interested in purchasing. Information deemed reliable but not guaranteed.
Copyright© 2026 Aiken Board of Realtors. All rights reserved.
Last Updated: 1/16/26 1:04 AM PST
This IDX solution is (c) Diverse Solutions 2026.