|
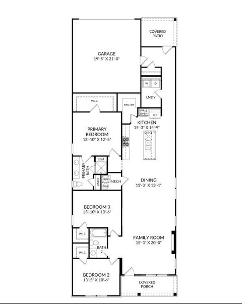
* UP to 12,000 in Closing Cost Incentive plus Move-in Package (refrigerator & blinds) with the use of our preferred lender! Introducing The Daphne--a beautifully designed single-story home in the highly sought-after Tavern Hill community, where timeless elegance meets modern comfort. With 1,802 square feet of thoughtfully curated living space, this 3-bedroom, 2-bath home offers the perfect blend of sophistication and functionality. Striking from the outside in, The Daphne features a raised slab foundation, brick veneer, durable Hardie Plank siding, and a charming rear-entry garage that enhances curb appeal while offering a clean, pedestrian-friendly streetscape. Step through the covered front porch into a spacious open-concept interior where the family room, dining area, and gourmet kitchen flow effortlessly--perfect for entertaining or everyday living. The kitchen is a chef's dream, featuring quartz countertops, a gas cooktop with a sleek hood vent, and a large walk-in pantry for ample storage. The family room is anchored by an elegant electric fireplace, adding cozy ambiance and a touch of luxury to the heart of the home. A covered rear patio invites you to unwind in privacy and style. The primary suite is a luxurious retreat, thoughtfully positioned just steps from the laundry room. It features a dual-sink vanity, a spacious walk-in or seated shower, and an oversized walk-in closet. Two additional bedrooms and a full bath complete the home's smart, functional layout. Each home in Tavern Hill comes standard with an energy-efficient tankless water heater--a premium upgrade included for your convenience and long-term savings. Enjoy the tranquility of suburban living with unmatched access--just 15 minutes from Downtown North Augusta, 30 minutes from Fort Gordon, and less than 5 minutes from Fox Creek High School. Planned community amenities include a resort-style pool, cabana, and pocket parks, creating a neighborhood experience that's both elevated and welcoming. All photos are stock images used for illustration purposes only. Schedule your private tour today and speak with the Neighborhood Sales Manager about available design selections, construction timelines, and exclusive closing cost incentives. This is refined living--reimagined.
| DAYS ON MARKET | 47 | LAST UPDATED | 1/16/2026 |
|---|---|---|---|
| TRACT | Tavern Hill | YEAR BUILT | 2026 |
| COMMUNITY | Not Aiken County | GARAGE SPACES | 2.0 |
| COUNTY | Edgefield | STATUS | Active |
| PROPERTY TYPE(S) | Single Family |
| Elementary School | Merriwether |
|---|---|
| Jr. High School | Merriwether |
| High School | Fox Creek |
| PRICE HISTORY | |
| Prior to Jan 16, '26 | $345,650 |
|---|---|
| Jan 16, '26 - Today | $346,650 |
| ADDITIONAL DETAILS | |
| AIR | Central Air |
|---|---|
| AIR CONDITIONING | Yes |
| APPLIANCES | Cooktop, Dishwasher, Disposal, Microwave, Tankless Water Heater |
| AREA | Not Aiken County |
| BASEMENT | None |
| CONSTRUCTION | Brick, HardiPlank Type, Stone |
| FIREPLACE | Yes |
| GARAGE | Attached Garage, Yes |
| HEAT | Forced Air, Natural Gas |
| HOA DUES | 450 |
| INTERIOR | Eat-in Kitchen, High Speed Internet, Kitchen Island, Pantry, Walk-in Closet(s) |
| LOT | 10454 sq ft |
| LOT DESCRIPTION | Sprinklers In Front, Sprinklers In Rear |
| LOT DIMENSIONS | 0.24 |
| PARKING | Garage Door Opener, Attached, Driveway, Garage |
| POOL DESCRIPTION | Association, See Remarks |
| SEWER | Public Sewer |
| STORIES | 1 |
| STYLE | Traditional |
| SUBDIVISION | Tavern Hill |
| UTILITIES | Cable Available, Underground Utilities, Water Available, Sewer Available, Electricity Available, Natural Gas Available |
| WATER | Public |
MORTGAGE CALCULATOR
TOTAL MONTHLY PAYMENT
0
P
I
*Estimate only
| SATELLITE VIEW |
| / | |
We respect your online privacy and will never spam you. By submitting this form with your telephone number
you are consenting for Venus
Griffin to contact you even if your name is on a Federal or State
"Do not call List".
Listed with Stanley Martin Homes
The data relating to real estate for sale on this web site comes in part from the Internet Data exchange (“IDX”) program of the Aiken Board of Realtors. IDX information is provided exclusively for consumers' personal, non-commercial use and may not be used for any purpose other than to identify prospective properties consumers may be interested in purchasing. Information deemed reliable but not guaranteed.
Copyright© 2026 Aiken Board of Realtors. All rights reserved.
Last Updated: 3/3/26 1:17 AM PST
This IDX solution is (c) Diverse Solutions 2026.