|
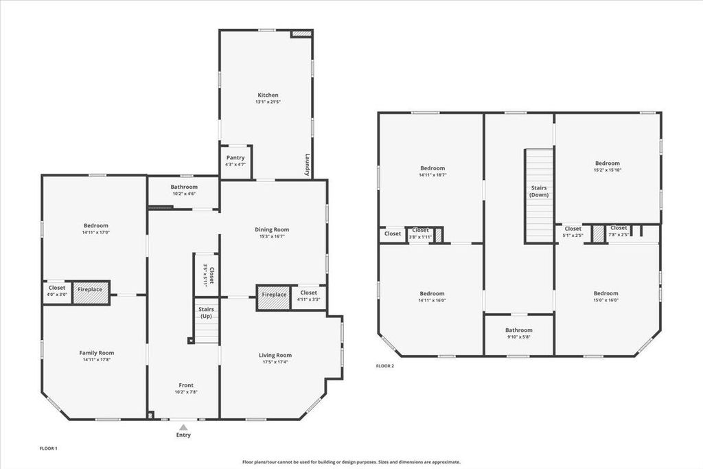
New price and NEW paint in downstairs! Owner has had restoration work on plaster walls and fresh paint downstairs. Historical two-story home on Edgefield's premier location, Buncombe Street! Original structure built in 1890, enlarged in 1895 by local lawyer, E.H. Folk, and family owned until 1961. Open the victorian architectural front door to a graceful hall with a beautiful staircase. Lovely shady front porch with fretwork spindles overlooks lush yard with renowned camellia garden and other flowering trees. Gardens once contained 500 camellia trees. Many century trees including a tea tree believed to be a gift from Russian Czar to Lucy Pickens in the late 1800's. Large country kitchen with new stove, microwave, and refrigerator at rear of home steps out onto its own private porch and access to privacy fenced back yard. Original wood floors, newly refinished in the downstairs. Dining room has floor to ceiling, large built in corner cabinet for fine China. Fireplaces have surrounds of antique tile. Living room has original coal grate fireplace with cover. Upstairs is another center hall and 4 bedrooms and newly renovated bath. Great metal roof installed 7 years ago. FIVE fireplaces throughout home! Fireplace in kitchen is gas burning, all others are already plumbed for gas. Recent updates to home include two new AC units, insulation, foundation repairs, exterior siding repairs, attic repairs, and re-wiring, and pvc plumbing throughout house. Current owner has completed major restoration for house and garden. Handicapped accessible and High Speed Internet with Carolina Connect. Walking distance to Historic Downtown Edgefield with shops, restaurants and public square. Utilities 235/month! NO City taxes in Edgefield!
| DAYS ON MARKET | 454 | LAST UPDATED | 2/10/2026 |
|---|---|---|---|
| TRACT | None-1ed | YEAR BUILT | 1900 |
| COMMUNITY | Edgefield (1ED) | COUNTY | Edgefield |
| STATUS | Active | PROPERTY TYPE(S) | Single Family |
| Elementary School | Parker |
|---|---|
| Jr. High School | JET |
| High School | Strom Thurmond |
| PRICE HISTORY | |
| Prior to Jan 23, '25 | $449,000 |
|---|---|
| Jan 23, '25 - Jan 27, '25 | $399,000 |
| Jan 27, '25 - Jul 9, '25 | $399,900 |
| Jul 9, '25 - Feb 10, '26 | $389,900 |
| Feb 10, '26 - Today | $399,900 |
| ADDITIONAL DETAILS | |
| AIR | Central Air |
|---|---|
| AIR CONDITIONING | Yes |
| APPLIANCES | Dishwasher, Electric Water Heater, Microwave, Range, Refrigerator |
| AREA | Edgefield (1ED) |
| CONSTRUCTION | Wood Siding |
| FIREPLACE | Yes |
| HEAT | Heat Pump |
| LOT | 0.76 acre(s) |
| LOT DESCRIPTION | Landscaped, See Remarks |
| LOT DIMENSIONS | 0.76 |
| PARKING | No Garage, None |
| SEWER | Public Sewer |
| STORIES | 2 |
| STYLE | 2 Levels |
| SUBDIVISION | None-1ed |
| WATER | Public |
MORTGAGE CALCULATOR
TOTAL MONTHLY PAYMENT
0
P
I
*Estimate only
| SATELLITE VIEW |
| / | |
We respect your online privacy and will never spam you. By submitting this form with your telephone number
you are consenting for Venus
Griffin to contact you even if your name is on a Federal or State
"Do not call List".
Listed with Weichert Realtors - Pendarvis Company
The data relating to real estate for sale on this web site comes in part from the Internet Data exchange (“IDX”) program of the Aiken Board of Realtors. IDX information is provided exclusively for consumers' personal, non-commercial use and may not be used for any purpose other than to identify prospective properties consumers may be interested in purchasing. Information deemed reliable but not guaranteed.
Copyright© 2026 Aiken Board of Realtors. All rights reserved.
Last Updated: 3/1/26 11:47 PM PST
This IDX solution is (c) Diverse Solutions 2026.