|
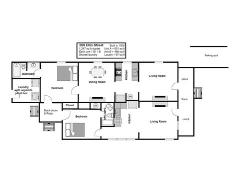
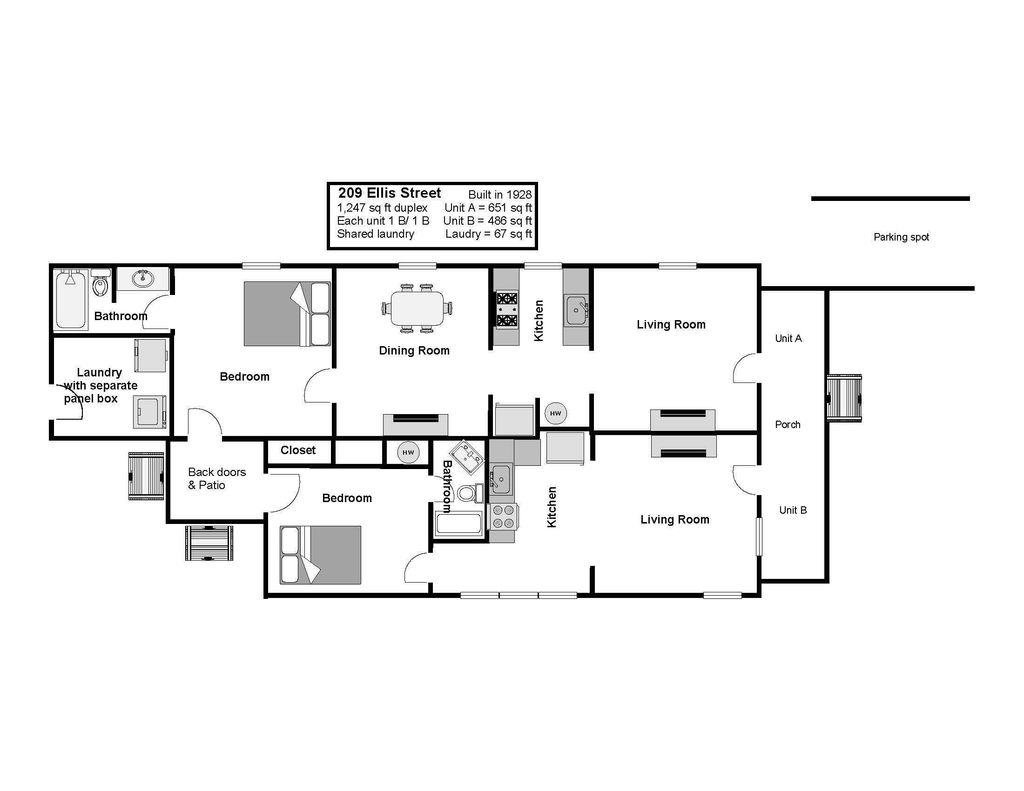
BACK ON MARKET! NO FAULT TO SELLER! Property has been appraised, inspected and repairs completed. Buyers financing fell through! Available NOW! in Olde Town, this 1927 duplex offers solid investment potential with one unit currently occupied and one unit vacant and ready for lease in a great location for either short term or long term rentals. The property sits on a great lot with and tenants will enjoy the charming front porch while the owner appreciates the ease of maintenance with the siding exterior. Both units are accessed from the shared front porch. Unit A is vacant with approximately 650 square feet and is a one-bedroom, one-bath apartment. Unit B is approximately 486 square feet, also a one-bedroom, one-bath unit, and is vacant, allowing immediate showing access and leasing potential. There is a shared water meter at the property but all other utilities are separately metered for electric and gas, with a third meter serving a dedicated laundry room accessed from the back of the property"”an appealing feature for tenants and property management. Parking is convenient with multiple spaces behind the building, accessed through a shared driveway between 215 and 219 Ellis Street, as well as an additional parking space directly off Ellis Street. Street parking is also readily available in front of the property. This is a great opportunity for investors looking to acquire a value-priced duplex in a desirable location with upside potential through lease-up and future rent increases.
| DAYS ON MARKET | 140 | LAST UPDATED | 9/30/2025 |
|---|---|---|---|
| TRACT | Old Towne | YEAR BUILT | 1928 |
| COMMUNITY | Richmond (2RI) | COUNTY | Richmond |
| STATUS | Active | PROPERTY TYPE(S) | Multi Family |
| Elementary School | Hornsby |
|---|---|
| Jr. High School | Hornsby WS |
| High School | Lucy Laney |
| ADDITIONAL DETAILS | |
| AIR | Central Air |
|---|---|
| AIR CONDITIONING | Yes |
| AREA | Richmond (2RI) |
| CONSTRUCTION | Vinyl Siding |
| LOT | 5663 sq ft |
| LOT DIMENSIONS | 0.0 |
| PARKING | Parking Pad |
| SEWER | Public Sewer |
| SUBDIVISION | Old Towne |
| WATER | Public |
MORTGAGE CALCULATOR
TOTAL MONTHLY PAYMENT
0
P
I
*Estimate only
| SATELLITE VIEW |
| / | |
We respect your online privacy and will never spam you. By submitting this form with your telephone number
you are consenting for Venus
Griffin to contact you even if your name is on a Federal or State
"Do not call List".
Listed with Meybohm Commercial Properties
The data relating to real estate for sale on this web site comes in part from the Internet Data exchange (“IDX”) program of the Aiken Board of Realtors. IDX information is provided exclusively for consumers' personal, non-commercial use and may not be used for any purpose other than to identify prospective properties consumers may be interested in purchasing. Information deemed reliable but not guaranteed.
Copyright© 2025 Aiken Board of Realtors. All rights reserved.
Last Updated: 10/29/25 10:09 AM PDT
This IDX solution is (c) Diverse Solutions 2025.