|
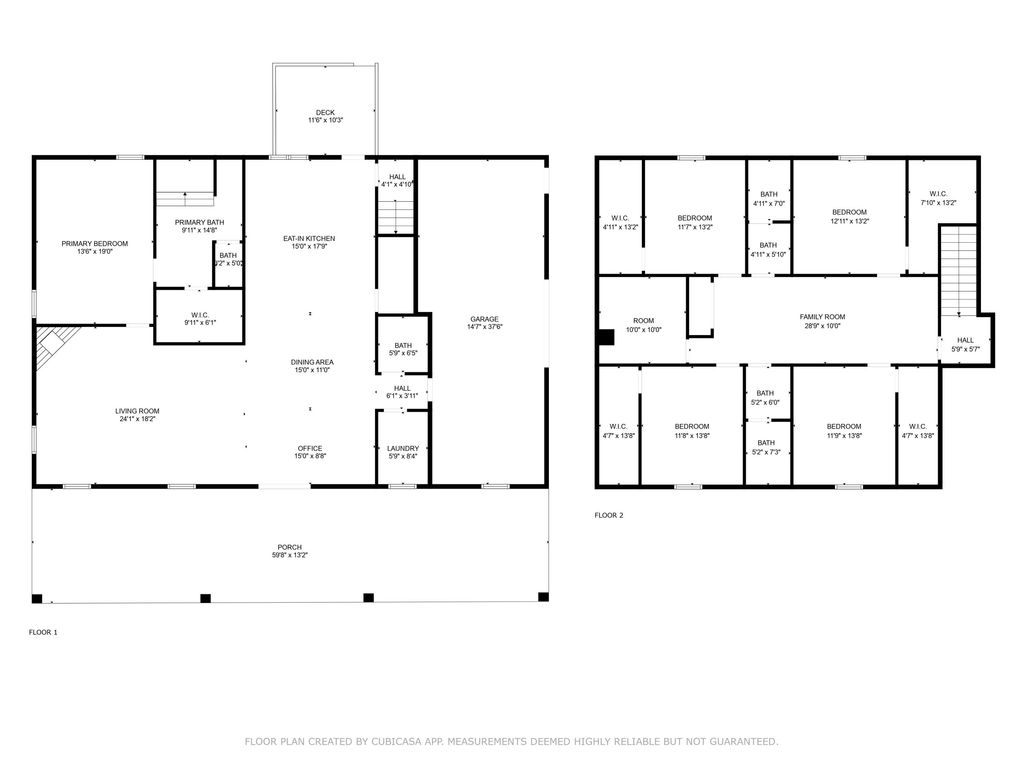
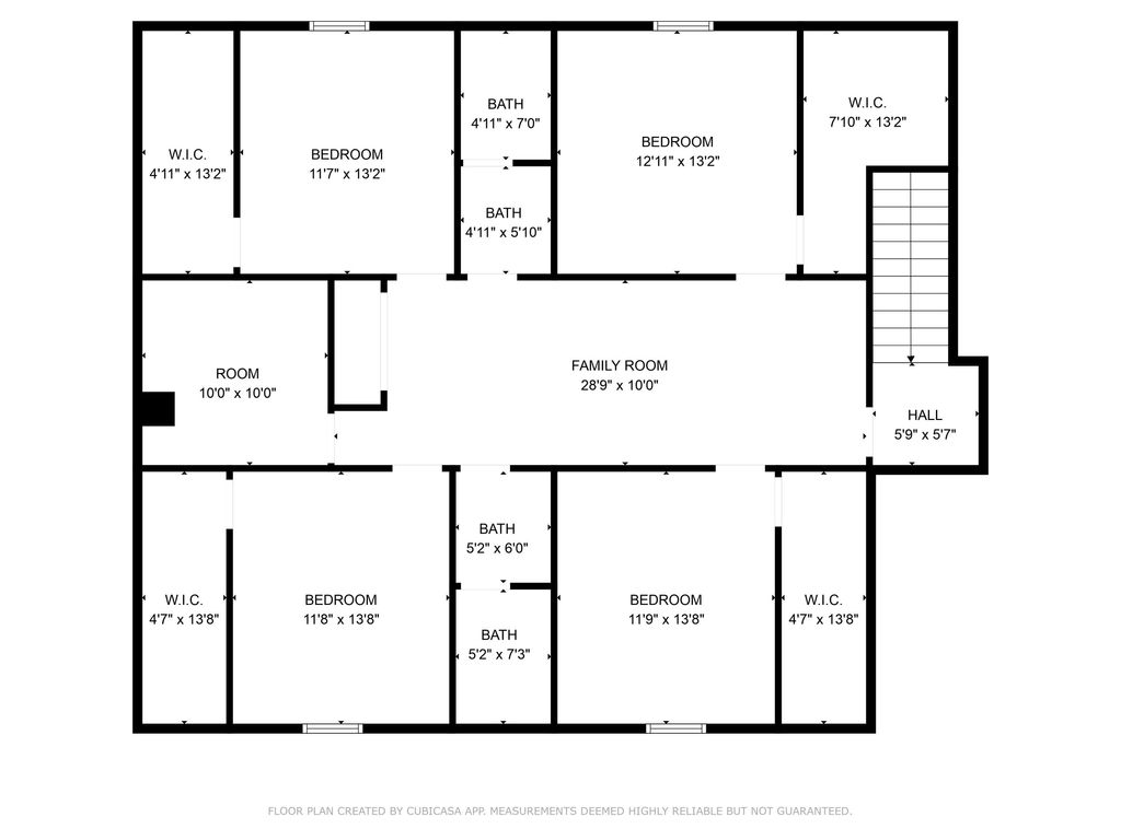
Set on over 1.5 acres, this 3,600 sqft barndominium-style home built on red iron steel beams, offers the perfect balance of modern comfort and quiet, rural charm "” all less than 30 minutes from Augusta. Escape the noise and discover your own slice of peaceful living in Matthews, GA. Step inside to an open and inviting living area anchored by a wood-burning fireplace capable of heating the entire home, flowing easily into a modern kitchen with granite countertops and an island, with plenty of space for gathering. Spend your mornings on the rear deck, watching the sunrise, and relax on the oversized front porch in the evenings, enjoying the sunset. With 5 bedrooms, 3.5 bathrooms, a multi-purpose room, and an upstairs loft, there's room for everyone "” whether you're hosting family, working from home, or simply spreading out. Family in town for the weekend and all the rooms are somehow full? Have your cousin hook up their camper on the side of the home. The primary suite is on the main level, providing a private retreat, while upstairs offers spacious secondary bedrooms. Love the outdoors? The backyard is already set up with a small paddock for horses and other farm animals, giving you the chance to create your own miniature homestead. A garage/workshop adds even more flexibility for hobbies, projects, or extra storage. Built in 2017, this home offers the rare combination of modern construction, rural privacy, and a property designed for those who want room to breathe, all within double-insulated walls that keep the power bill to a surprising minimum throughout the year. Whether you're dreaming of raising animals, growing a garden, or simply enjoying quiet evenings on the porch, this is where country living begins.
| DAYS ON MARKET | 67 | LAST UPDATED | 9/19/2025 |
|---|---|---|---|
| TRACT | None-2jf | YEAR BUILT | 2017 |
| COMMUNITY | Jefferson (2JF) | GARAGE SPACES | 2.0 |
| COUNTY | Jefferson | STATUS | Active |
| PROPERTY TYPE(S) | Single Family |
| Elementary School | Wrens |
|---|---|
| Jr. High School | Wrens |
| High School | Jefferson County |
| PRICE HISTORY | |
| Prior to Sep 19, '25 | $435,000 |
|---|---|
| Sep 19, '25 - Today | $400,000 |
| ADDITIONAL DETAILS | |
| AIR | Central Air |
|---|---|
| AIR CONDITIONING | Yes |
| APPLIANCES | Built-In Electric Oven, Dishwasher, Disposal, Dryer, Electric Oven, Electric Range, Refrigerator, Tankless Water Heater, Washer |
| AREA | Jefferson (2JF) |
| BARN/EQUESTRIAN | Yes |
| CONSTRUCTION | Metal Siding |
| FIREPLACE | Yes |
| GARAGE | Attached Garage, Yes |
| HEAT | Electric, Fireplace(s), Propane |
| LOT | 1.61 acre(s) |
| LOT DESCRIPTION | Pasture, See Remarks |
| LOT DIMENSIONS | 0.0 |
| PARKING | Attached, Garage, See Remarks, Workshop in Garage |
| SEWER | Septic Tank |
| STORIES | 2 |
| STYLE | 2-Story, Other, See Remarks |
| SUBDIVISION | None-2jf |
| WATER | Well |
MORTGAGE CALCULATOR
TOTAL MONTHLY PAYMENT
0
P
I
*Estimate only
| SATELLITE VIEW |
| / | |
We respect your online privacy and will never spam you. By submitting this form with your telephone number
you are consenting for Venus
Griffin to contact you even if your name is on a Federal or State
"Do not call List".
Listed with Berkshire Hathaway HomeServices Beazley Realtors
The data relating to real estate for sale on this web site comes in part from the Internet Data exchange (“IDX”) program of the Aiken Board of Realtors. IDX information is provided exclusively for consumers' personal, non-commercial use and may not be used for any purpose other than to identify prospective properties consumers may be interested in purchasing. Information deemed reliable but not guaranteed.
Copyright© 2025 Aiken Board of Realtors. All rights reserved.
Last Updated: 10/29/25 2:05 AM PDT
This IDX solution is (c) Diverse Solutions 2025.