|
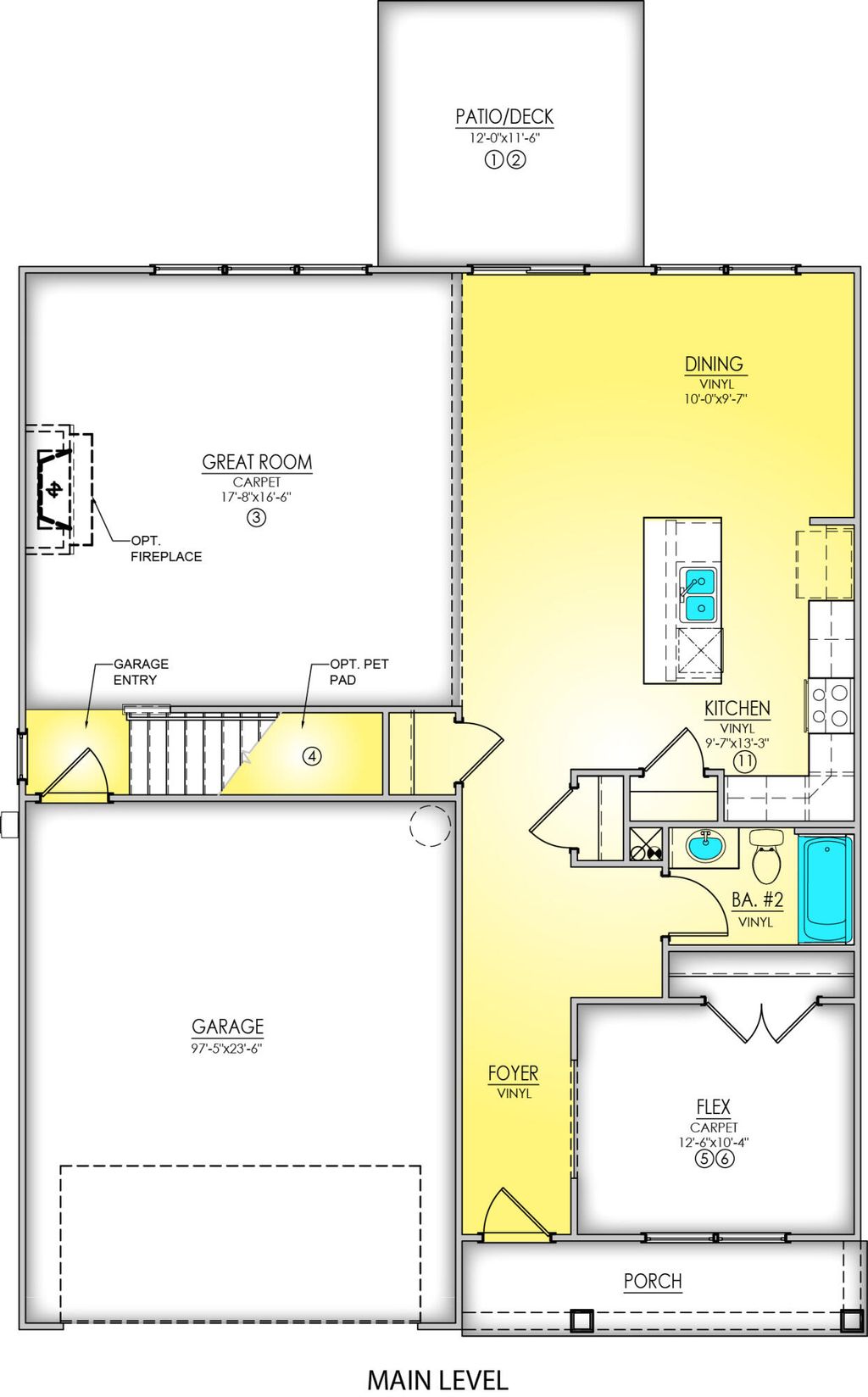
The Bradley II is our most requested floorplan "” and for good reason! Offering just over 3,000 square feet of beautifully designed living space, this home is the blueprint for large families or anyone looking for ALL the space to grow. The main level features an inviting open-concept layout. Immediately upon entry, a private home office with glass-paneled French doors and a full bathroom provides the perfect space for remote work or can easily double as a guest suite. The gourmet kitchen includes stainless steel appliances, an eat-in island, and a built-in Bluetooth sound system, opening seamlessly to a spacious dining area. The oversized living room complete with a cozy fireplace is ideal for entertaining. Upstairs, a huge central loft offers even more flexible living space. The private primary suite impresses with a box-tray ceiling, two walk-in closets, and a luxurious bath featuring dual vanities, a garden tub, a walk-in tile shower, and a linen closet for extra storage. Three additional bedrooms each include walk-in closets and share a full double-vanity bath. Currently under construction and available for showings NOW, this home combines smart design with exceptional comfort. Visit the Camellia Park site team"”open daily"”and ask about our current financing promotions! *finished photos are of previously completed builds of the same floorplan, photos will be updated as construction progresses*
| DAYS ON MARKET | 3 | LAST UPDATED | 10/23/2025 |
|---|---|---|---|
| TRACT | Camellia Park | YEAR BUILT | 2025 |
| COMMUNITY | McDuffie (2MD) | GARAGE SPACES | 2.0 |
| COUNTY | McDuffie | STATUS | Active |
| PROPERTY TYPE(S) | Single Family |
| Elementary School | Thomson |
|---|---|
| Jr. High School | Thomson |
| High School | THOMSON |
| ADDITIONAL DETAILS | |
| AIR | Ceiling Fan(s), Central Air |
|---|---|
| AIR CONDITIONING | Yes |
| APPLIANCES | Dishwasher, Disposal, Electric Range, Gas Water Heater, Microwave, Tankless Water Heater |
| AREA | McDuffie (2MD) |
| CONSTRUCTION | HardiPlank Type, Stone, Vinyl Siding |
| FIREPLACE | Yes |
| GARAGE | Yes |
| HEAT | Fireplace(s), Natural Gas |
| HOA DUES | 500 |
| LOT | 9148 sq ft |
| LOT DESCRIPTION | Landscaped, Sprinklers In Front, Sprinklers In Rear |
| LOT DIMENSIONS | 0.0 |
| PARKING | Garage, Parking Pad |
| SEWER | Public Sewer |
| STORIES | 2 |
| STYLE | 2 Levels |
| SUBDIVISION | Camellia Park |
| WATER | Public |
MORTGAGE CALCULATOR
TOTAL MONTHLY PAYMENT
0
P
I
*Estimate only
| SATELLITE VIEW |
| / | |
We respect your online privacy and will never spam you. By submitting this form with your telephone number
you are consenting for Venus
Griffin to contact you even if your name is on a Federal or State
"Do not call List".
Listed with Meybohm Real Estate - Evans
The data relating to real estate for sale on this web site comes in part from the Internet Data exchange (“IDX”) program of the Aiken Board of Realtors. IDX information is provided exclusively for consumers' personal, non-commercial use and may not be used for any purpose other than to identify prospective properties consumers may be interested in purchasing. Information deemed reliable but not guaranteed.
Copyright© 2025 Aiken Board of Realtors. All rights reserved.
Last Updated: 10/26/25 11:46 AM PDT
This IDX solution is (c) Diverse Solutions 2025.