| 
 | 
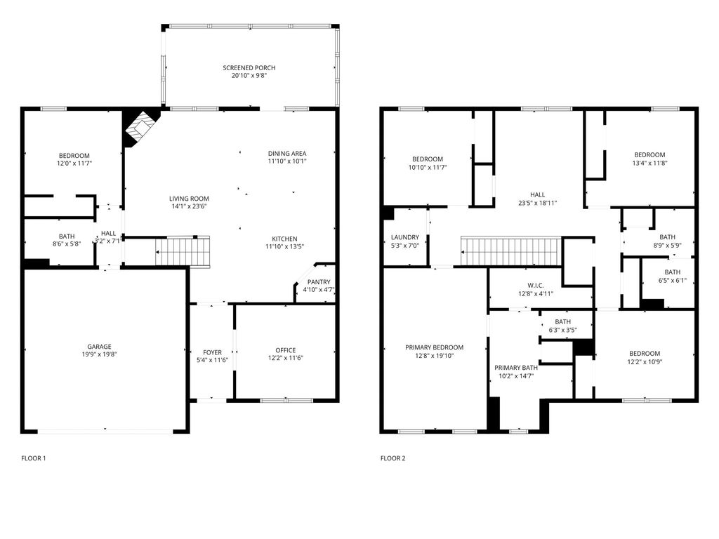
Welcome to Pepper Hill Estates this spacious home is nestled in a quiet cul-de-sac in the heart of Grovetown, this stunning 5-bedroom, 3-bath home offers the perfect blend of space, comfort, and modern design. From the moment you step inside, you'll love the open-concept layout that seamlessly connects the main living areas, creating an inviting space for family gatherings and entertaining guests. The spacious kitchen features ample cabinetry, a large island, and clear sightlines to the dining and living areas, making it ideal for both everyday living and hosting. A dedicated office space on the main floor provides the perfect setup for working from home. An additional closet has been thoughtfully converted into a compact workspace"”a great bonus for students or multiple remote professionals. Upstairs, a large loft area offers versatile space that can be used as a media room, playroom, or additional lounge area. The primary suite is a true retreat, complete with a luxurious en-suite bathroom and a custom-built walk-in closet designed for organization and style. Four additional bedrooms provide plenty of room for family and guests. The backyard features a screened-in patio. Perfect for relaxing evenings or weekend entertaining. The yard offers ample space for outdoor activities and gardening. Located just minutes from Fort Gordon, great schools, shopping, dining, and local amenities, this home combines convenience with a quiet, community.
| DAYS ON MARKET | 1 | LAST UPDATED | 10/30/2025 | 
|---|---|---|---|
| TRACT | Pepper Hill | YEAR BUILT | 2019 | 
| COMMUNITY | Columbia (4CO) | GARAGE SPACES | 2.0 | 
| COUNTY | Columbia | STATUS | Active | 
| PROPERTY TYPE(S) | Single Family | 
| Elementary School | Grovetown | 
|---|---|
| Jr. High School | Grovetown | 
| High School | Grovetown High | 
| ADDITIONAL DETAILS | |
| AIR | Ceiling Fan(s), Central Air | 
|---|---|
| AIR CONDITIONING | Yes | 
| APPLIANCES | Dishwasher, Disposal, Dryer, Electric Range, Microwave, Washer | 
| AREA | Columbia (4CO) | 
| CONSTRUCTION | Brick, HardiPlank Type | 
| FIREPLACE | Yes | 
| GARAGE | Attached Garage, Yes | 
| HEAT | Electric, Fireplace(s) | 
| HOA DUES | 500 | 
| LOT | 10454 sq ft | 
| LOT DESCRIPTION | Cul-de-Sac, Landscaped, Sprinklers In Front, Sprinklers In Rear | 
| LOT DIMENSIONS | 0.0 | 
| PARKING | Attached, Garage, Concrete | 
| SEWER | Public Sewer | 
| STYLE | 2 Levels | 
| SUBDIVISION | Pepper Hill | 
| WATER | Public | 
            MORTGAGE CALCULATOR
        
        TOTAL MONTHLY PAYMENT
0
                    P
                        I 
                    
            *Estimate only
        
    | SATELLITE VIEW | 
| / | |
	We respect your online privacy and will never spam you. By submitting this form with your telephone number
	you are consenting for Venus
	Griffin to contact you even if your name is on a Federal or State
	"Do not call List".
	
    Listed with Meybohm Real Estate - Evans
	The data relating to real estate for sale on this web site comes in part from the Internet Data exchange (“IDX”) program of the Aiken Board of Realtors. IDX information is provided exclusively for consumers' personal, non-commercial use and may not be used for any purpose other than to identify prospective properties consumers may be interested in purchasing. Information deemed reliable but not guaranteed. 
Copyright© 2025 Aiken Board of Realtors. All rights reserved. 
Last Updated: 10/30/25 6:24 PM PDT 
This IDX solution is (c) Diverse Solutions 2025.
 
											
				 
			
					 Twitter
									        Twitter Facebook
									        Facebook Email
									        Email 
									 
									 
									 
									 
									 
									 
									 
									 
									 
									 
									 
									 
									 
									 
									 
									 
									 
									 
									 
									 
									 
									 
									 
									 
									 
									 
									 
									 
									 
									 
									 
									 
									 
									 
									 
									 
									 
									 
									 
									 
									 
									 
									 
									 
									 
									 
									 
									 
									