|
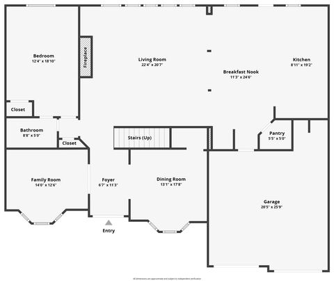
Welcome to 1003 Bristol Trail in Somerset @ Williamsburg - one of Evans' most desirable neighborhoods! This spacious 5-bedroom, 4-bathroom home offers over 4,100 square feet of beautifully maintained living space in Columbia County's highly sought-after school district. From the moment you arrive, you'll be impressed by the stately brick exterior, inviting front entry, and manicured lawn. Inside, the open-concept layout is ideal for entertaining. The bright living room features rich hardwood floors, elegant crown molding, and large windows that fill the space with natural light. The chef's kitchen is a showstopper with granite countertops, an oversized island with seating, stainless steel appliances, double ovens, abundant cabinetry, and a tile backsplash "” perfect for family gatherings or dinner parties. A guest/in-law suite with full bath is conveniently located on the main level. Upstairs, you'll find a spacious owner's retreat with a sitting area, fireplace, and tray ceilings "” a true private escape. The en suite bath offers dual vanities, a soaking tub, and a separate shower. Four additional bedrooms and a large loft/flex area provide room for everyone to spread out. Step outside to a covered back patio overlooking the fenced backyard "” ideal for morning coffee or relaxing evenings. Other features include a two-car garage, generous storage, and energy-efficient construction. Located minutes from top-rated schools, shopping, dining, and Fort Gordon, this home combines luxury, comfort, and convenience in one of the area's premier communities. Don't miss your chance to make 1003 Bristol Trail your new home!
| DAYS ON MARKET | 122 | LAST UPDATED | 1/27/2026 |
|---|---|---|---|
| TRACT | Somerset @ Williamsburg | YEAR BUILT | 2011 |
| COMMUNITY | Columbia (2CO) | GARAGE SPACES | 2.0 |
| COUNTY | Columbia | STATUS | Active |
| PROPERTY TYPE(S) | Single Family |
| Elementary School | Riverside |
|---|---|
| Jr. High School | Riverside |
| High School | Greenbrier |
| PRICE HISTORY | |
| Prior to Jan 27, '26 | $504,900 |
|---|---|
| Jan 27, '26 - Today | $497,000 |
| ADDITIONAL DETAILS | |
| APPLIANCES | Built-In Electric Oven, Dishwasher, Double Oven, Electric Oven, Electric Range, Electric Water Heater, Microwave |
|---|---|
| AREA | Columbia (2CO) |
| CONSTRUCTION | Brick, HardiPlank Type |
| FIREPLACE | Yes |
| GARAGE | Attached Garage, Yes |
| HOA DUES | 100 |
| LOT | 0.29 acre(s) |
| LOT DESCRIPTION | See Remarks |
| LOT DIMENSIONS | 0.29 |
| PARKING | Attached, Garage, Garage Door Opener, See Remarks |
| SEWER | Public Sewer |
| STORIES | 2 |
| STYLE | 2 Levels |
| SUBDIVISION | Somerset @ Williamsburg |
| WATER | Public |
MORTGAGE CALCULATOR
TOTAL MONTHLY PAYMENT
0
P
I
*Estimate only
| SATELLITE VIEW |
| / | |
We respect your online privacy and will never spam you. By submitting this form with your telephone number
you are consenting for Venus
Griffin to contact you even if your name is on a Federal or State
"Do not call List".
Listed with Meybohm Real Estate - Wheeler
The data relating to real estate for sale on this web site comes in part from the Internet Data exchange (“IDX”) program of the Aiken Board of Realtors. IDX information is provided exclusively for consumers' personal, non-commercial use and may not be used for any purpose other than to identify prospective properties consumers may be interested in purchasing. Information deemed reliable but not guaranteed.
Copyright© 2026 Aiken Board of Realtors. All rights reserved.
Last Updated: 3/2/26 7:36 AM PST
This IDX solution is (c) Diverse Solutions 2026.