|
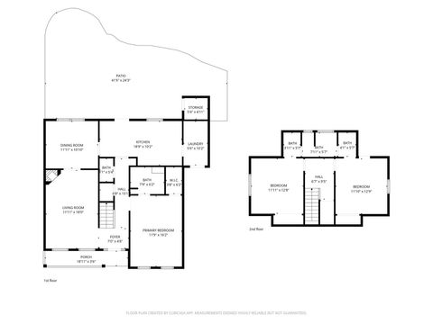
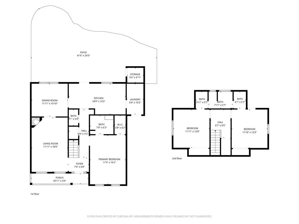
Great West Augusta location. 3 bedrooms, owner suite down, owners bathroom has a walk in tile shower with large bench and glass closure, half bath downstairs, Jack and Jill baths between upstairs bedrooms. Beautifully remodeled kitchen with stainless steel appliances and granite countertops. Separate laundry area with cabinets. Formal Dining Room, Living Room with built in electric fireplace. New Roof, New Flooring downstairs, all new Faux Blinds, 2 Doorbells w/cameras & voice. New HVAC on lower level. Outside hookup for a generator. New Tuffshed Building w/work bench.
| DAYS ON MARKET | 68 | LAST UPDATED | 1/16/2026 |
|---|---|---|---|
| TRACT | Pleasant Valley (RI) | YEAR BUILT | 1986 |
| COMMUNITY | Richmond (1RI) | COUNTY | Richmond |
| STATUS | Active | PROPERTY TYPE(S) | Single Family |
| Elementary School | Warren Road |
|---|---|
| Jr. High School | Tutt |
| High School | Westside Comp. High |
| PRICE HISTORY | |
| Prior to Jan 16, '26 | $269,900 |
|---|---|
| Jan 16, '26 - Today | $266,000 |
| ADDITIONAL DETAILS | |
| AIR | Ceiling Fan(s), Central Air |
|---|---|
| AIR CONDITIONING | Yes |
| APPLIANCES | Dishwasher, Electric Range, Electric Water Heater, Microwave, Refrigerator, Vented Exhaust Fan |
| AREA | Richmond (1RI) |
| CONSTRUCTION | Brick, Masonite |
| FIREPLACE | Yes |
| HEAT | Fireplace(s), Forced Air |
| LOT | 0.3 acre(s) |
| LOT DESCRIPTION | Sprinklers In Front, Sprinklers In Rear |
| LOT DIMENSIONS | 0.3 |
| PARKING | Parking Pad |
| SEWER | Public Sewer |
| STORIES | 2 |
| STYLE | 2-Story, Cape Cod |
| SUBDIVISION | Pleasant Valley (RI) |
| WATER | Public |
MORTGAGE CALCULATOR
TOTAL MONTHLY PAYMENT
0
P
I
*Estimate only
| SATELLITE VIEW |
| / | |
We respect your online privacy and will never spam you. By submitting this form with your telephone number
you are consenting for Venus
Griffin to contact you even if your name is on a Federal or State
"Do not call List".
Listed with ERA Wilder Realty
The data relating to real estate for sale on this web site comes in part from the Internet Data exchange (“IDX”) program of the Aiken Board of Realtors. IDX information is provided exclusively for consumers' personal, non-commercial use and may not be used for any purpose other than to identify prospective properties consumers may be interested in purchasing. Information deemed reliable but not guaranteed.
Copyright© 2026 Aiken Board of Realtors. All rights reserved.
Last Updated: 1/20/26 4:03 AM PST
This IDX solution is (c) Diverse Solutions 2026.