|
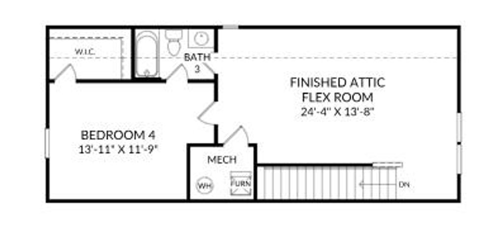
4000 Real Hero's discount available for qualified buyers (Active and retired military, first responders, and teachers) on contracts written after 12/12/25 and closing by March 31, 2026! Up to 12,000 closing cost incentive with use of preferred lender. The Easton by national award winning builder, located in our newest neighborhood, Ferguson Farms. Stylish 4-bed, 3-bath home with open floorplan and practical design. Main level primary suite with walk-in closet and dual vanities. Ideal space to grow into with guest bedrooms and ample storage. Optional upper flex space for playroom or media room. Covered patio or backyard enjoyment. Built for comfort and affordability. Standard features include gutters, sprinkler system, 42'' upper cabinets, granite kitchen counters, quartz bathroom counters, and fiber cement board siding. The neighborhood is located near I-20, Fort Gordon, and Downtown Augusta. 8 minutes from Ft. Gordon Gate 6 and 11 minutes from Gate 1. Amenities include playground, pavilion, and community pond, plus access to highly-rated Columbia County Schools. *photos are for illustrative purposes only actual home finishes may vary*. Homesite 039.
| DAYS ON MARKET | 3 | LAST UPDATED | 12/10/2025 |
|---|---|---|---|
| TRACT | Ferguson Farms | YEAR BUILT | 2025 |
| COMMUNITY | Columbia (4CO) | GARAGE SPACES | 2.0 |
| COUNTY | Columbia | STATUS | Active |
| PROPERTY TYPE(S) | Single Family |
| Elementary School | Cedar Ridge |
|---|---|
| Jr. High School | Grovetown |
| High School | Grovetown High |
| ADDITIONAL DETAILS | |
| AIR | Central Air |
|---|---|
| AIR CONDITIONING | Yes |
| APPLIANCES | Dishwasher, Disposal, Gas Range, Gas Water Heater, Microwave, Tankless Water Heater |
| AREA | Columbia (4CO) |
| CONSTRUCTION | HardiPlank Type |
| GARAGE | Attached Garage, Yes |
| HEAT | Natural Gas |
| HOA DUES | 450 |
| LOT | 10019 sq ft |
| LOT DESCRIPTION | Landscaped, Sprinklers In Front, Sprinklers In Rear |
| LOT DIMENSIONS | 0.23 |
| PARKING | Attached, Garage, Garage Door Opener |
| SEWER | Public Sewer |
| STORIES | 2 |
| STYLE | 2 Levels |
| SUBDIVISION | Ferguson Farms |
| WATER | Public |
MORTGAGE CALCULATOR
TOTAL MONTHLY PAYMENT
0
P
I
*Estimate only
| SATELLITE VIEW |
| / | |
We respect your online privacy and will never spam you. By submitting this form with your telephone number
you are consenting for Venus
Griffin to contact you even if your name is on a Federal or State
"Do not call List".
Listed with Stanley Martin South Carolina Brokerage
The data relating to real estate for sale on this web site comes in part from the Internet Data exchange (“IDX”) program of the Aiken Board of Realtors. IDX information is provided exclusively for consumers' personal, non-commercial use and may not be used for any purpose other than to identify prospective properties consumers may be interested in purchasing. Information deemed reliable but not guaranteed.
Copyright© 2025 Aiken Board of Realtors. All rights reserved.
Last Updated: 12/12/25 9:09 PM PST
This IDX solution is (c) Diverse Solutions 2025.