|
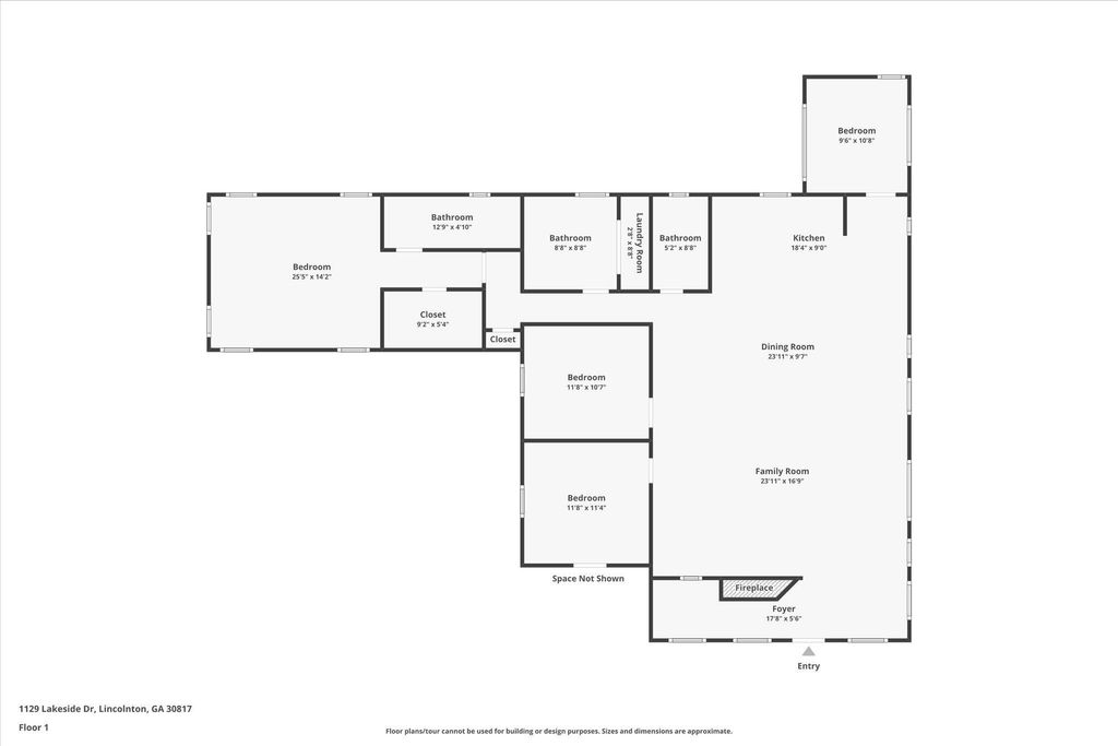
Lakefront home with private 32x32 covered 2-slip boat dock & 30x20 shop! This beautifully renovated property offers everything you need for full-time living or the perfect weekend retreat. Everything you need for fun on the water and around the neighborhood--boat, trailer, and golf cart included with an acceptable offer. The expansive open great room with a fireplace is the centerpiece of the home, featuring wall-to-wall windows that frame panoramic lake views and flood the space with natural light. The fabulous kitchen comes complete with all appliances, generous solid-surface countertops, and a huge island--perfect for cooking and entertaining. The owner's suite is a true retreat with a gorgeous, brand-new bath and walk-in closet. Two spacious secondary bedrooms and a versatile bunk room provide plenty of sleeping options. Additional features include a large foyer, walk-in laundry room, abundant storage, a 1 year new architectural shingle roof on the home and shop, custom stringless window shades, and the option to purchase furnishings. Outdoors, the property is set up for lake life with a private 32x32 covered 2-slip dock and a 30x20 stick-built shop on slab with 12x30 lean-to, drive-in bay with sliding barn doors, walkthrough door, 30-amp electric panel, and water stubbed in--perfect for a workshop, boat storage, or hobby space. A separate storage building adds even more room for equipment, lake gear, or tools. Plus, a fabulous 20x12 gazebo overlooks the water for year-round enjoyment. Enjoy morning coffee by the lake, afternoons on the water, and evenings taking in breathtaking views. This home truly offers the best of lakefront living.
| DAYS ON MARKET | 1 | LAST UPDATED | 3/13/2026 |
|---|---|---|---|
| TRACT | Other | YEAR BUILT | 1965 |
| COMMUNITY | Lincoln (1LI) | GARAGE SPACES | 1.0 |
| COUNTY | Lincoln | STATUS | Active |
| PROPERTY TYPE(S) | Single Family |
| Elementary School | Lincoln County |
|---|---|
| Jr. High School | LINCOLN COUNTY |
| High School | Lincoln County |
| ADDITIONAL DETAILS | |
| AIR | Central Air |
|---|---|
| AIR CONDITIONING | Yes |
| APPLIANCES | Built-In Electric Oven, Dishwasher, Electric Oven, Refrigerator |
| AREA | Lincoln (1LI) |
| CONSTRUCTION | Vinyl Siding |
| EXTERIOR | Dock |
| FIREPLACE | Yes |
| GARAGE | Yes |
| HEAT | Electric, Fireplace(s) |
| LOT | 0.67 acre(s) |
| LOT DESCRIPTION | See Remarks, Waterfront |
| LOT DIMENSIONS | 0.67 |
| PARKING | Detached Carport, Detached |
| SEWER | Septic Tank |
| STORIES | 1 |
| STYLE | Ranch |
| SUBDIVISION | Other |
| WATER | Public |
| WATERFRONT | Yes |
| WATERFRONT DESCRIPTION | Lake Front, Waterfront |
MORTGAGE CALCULATOR
TOTAL MONTHLY PAYMENT
0
P
I
*Estimate only
| SATELLITE VIEW |
| / | |
We respect your online privacy and will never spam you. By submitting this form with your telephone number
you are consenting for Venus
Griffin to contact you even if your name is on a Federal or State
"Do not call List".
Listed with Re/max True Advantage
The data relating to real estate for sale on this web site comes in part from the Internet Data exchange (“IDX”) program of the Aiken Board of Realtors. IDX information is provided exclusively for consumers' personal, non-commercial use and may not be used for any purpose other than to identify prospective properties consumers may be interested in purchasing. Information deemed reliable but not guaranteed.
Copyright© 2026 Aiken Board of Realtors. All rights reserved.
Last Updated: 3/13/26 6:55 PM PDT
This IDX solution is (c) Diverse Solutions 2026.